2022-07-22
幸福的生活
既有柴米油盐的平淡
又有风花雪月的浪漫
在简约轻奢风的家中
享受纯粹和本质的生活
才是安放我们心灵最好的方式...
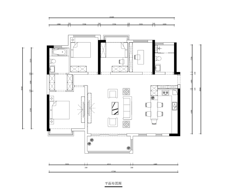
这是一个125㎡现代轻奢住宅,时尚与质感生活的融合,明亮的自然光,浅色调的配色,渲染素雅宁静的空间气息,再辅以简练的线条和简洁的陈设,表达出简约而不失格调的生活态度。

▲平面图
客厅
客厅地面采用和系列—清水水泥地砖通铺,选择同色系美缝,打造水泥自流平的自然效果。

▲客厅地砖:和系列—清水水泥
不规则布艺沙发点缀跳色抱枕,温馨又有亮点。茶几、电视柜上加入木元素清新自然。

电视背景墙整面连纹大板,大气独特,增加长城板视觉效果更丰富。

▲电视背景墙:浩瀚之境—岩板+肤感长城造型板
餐厨
开放式厨房+岛台餐桌的搭配,视野开阔,空间利用率高,连接玄关做整面柜体,极大增加收纳空间。跳色餐椅点亮,墙面做极简石膏线搭配精致黄铜壁灯,墙漆选用奶油色,极简中透露一丝奶呼呼的轻奢浪漫。

▲厨房墙面:精装优选
▲厨房+餐厅地面:和系列—清水水泥
书房
书房采用浅灰+木纹整面柜体,做部分开放格方便随手拿放杂物,造型圆润的原木弧形

▲书房背景墙:肤感平面护墙板
▲书房地面:HPL石晶地板
次卧
次卧墙面由深浅灰色墙板拼接,

▲次卧背景墙:肤感平面护墙板
▲次卧地面:HPL石晶地板
儿童房
果绿色墙板与柜体颜色一致,清爽活泼。1.5米宽

▲儿童房背景墙:肤感平面护墙板
▲儿童房地面:石晶地板
主卧
灰色墙板与黑色镜面结合,搭配橙红色床品,精致又时尚。高低床头柜设计,满足


▲主卧背景墙:肤感平面护墙板
▲主卧地面:HPL石晶地板
主卫
主卫放置浴缸更有生活情调,浴缸区域通过灯光暗藏和抬高地面做分割,铺贴奢石系列-玛西亚蓝,典雅独特。

▲主卫干区:精装优选
▲主卫湿区:浩瀚之境—奢侈大理石
公卫
公卫使用精装优选的无限连纹产品,配合同色美缝,可以减弱分割感,打造一体式效果,简约清爽。

▲公卫墙面、地面:精装优选
回归家庭
回归生活
回到最初的温暖
并在简约轻奢中发现优雅的惊喜

▲鸟瞰图