2024-08-30

“不拘于特定风格限制,舒服才是家的根本”,本期业主更注重自我个性的表达,将自己的喜爱家居风格元素进行融合,搭配出独一无二的生活空间。

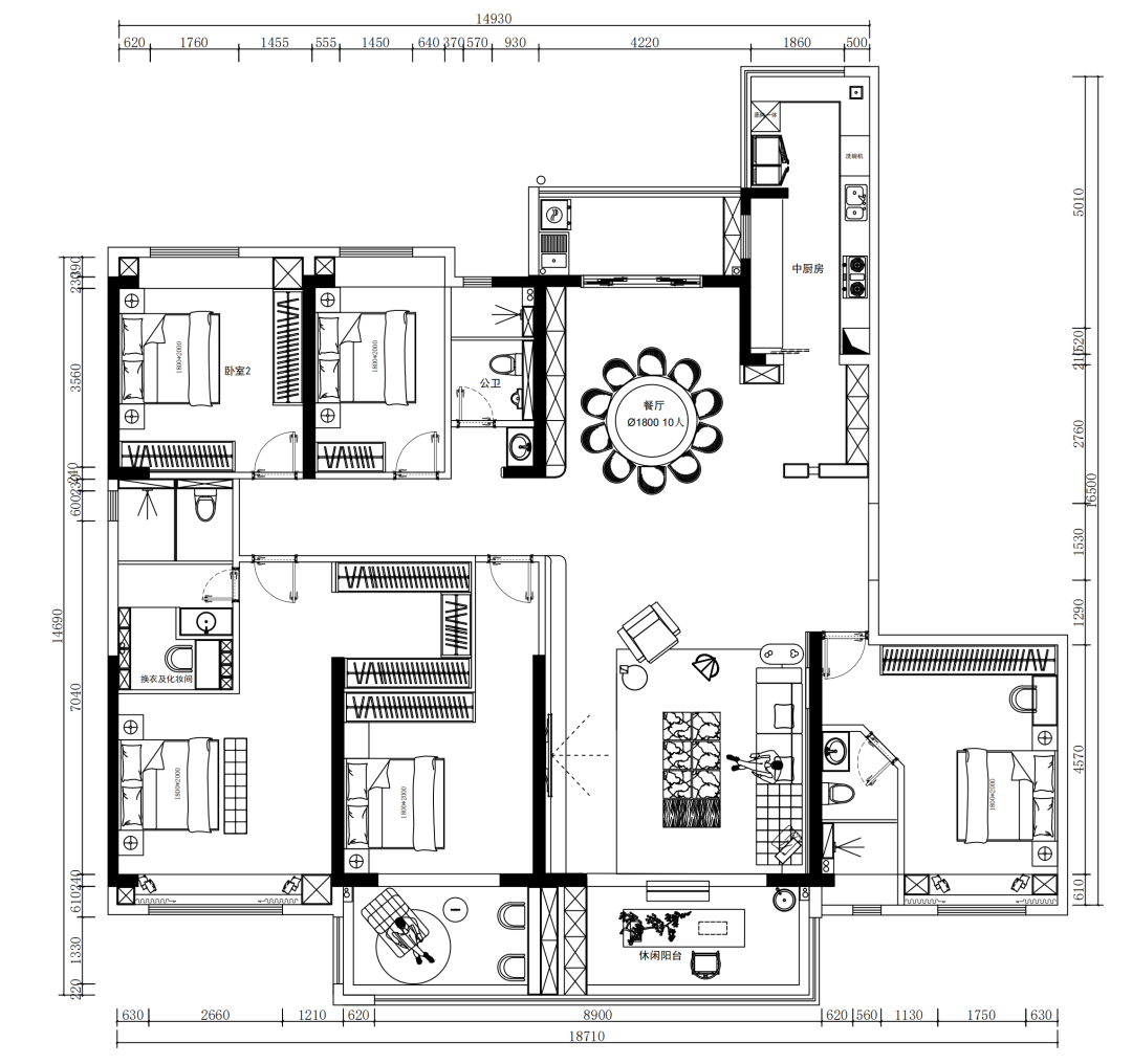
平面图展示
项目类别:家装实景案例
项目地址:广东普宁
选用产品: 整屋地面:900*1800,L9PR41G
卫生间墙地:750×1500,K8PP29G
厨房墙:900*1800,L9PK289G
床头背景和房间墙:硅藻泥科技护墙板

玄关是连接室内与室外的通道,也是对家的第一印象,灰色大理石纹理搭配秩序叠级设计,通过基础线性的立体化,使墙面更具动态感,摆放的红色兔子和绿植,一开门,家的温馨气息扑面而来,使身心切换到愉悦的模式,回归到舒适状态。

全屋采用鹰牌2086现代砖—浅滩通铺,900*1800mm大规格,增加空间视觉面积的同时更显大气通透,暖黄色天鹅绒柔光质感结合微水泥肌理,既温柔又高级,也能满足各种风格搭配需求。


客厅萃取意奢风元素,运用大理石,岩板等高奢材质的碰撞,整体空间精致感十足,采用无主灯设计,灵活的灯光调节,显示出多重效果和氛围,简洁宽敞的真皮沙发更彰显主人高品质生活。


"兰陵美酒郁金香,玉碗盛来琥珀光",餐厅萃取国风元素,其背景墙采用鹰牌2086现代砖—凝玉,石材韵味与人文意象的结合,将自然山河风光完美呈现,布局开放式设计,则让用餐的空间感大大增加。


取消阳台推拉门,将客厅与茶室融为一体,借助阳台这个最佳观景区,品茶洽谈,好不自在,旁边加以植物点缀,将自然搬进屋内,赋予空间生命力。



主卧和次卧萃取简约风元素,以白色和米色为主基调,搭配同色系鹰牌硅藻泥科技护墙板,既健康又高级,其整体运用灵动的线条设计,通过精简的家具搭配,打造一个宁静且清爽的私密空间。


儿童房萃取奶油风元素,以粉色和暖白进行延展,营造舒缓而不甜腻的少女感,墙头的卡通玩偶点缀,让房间多了一丝俏皮和浪漫。



浴室萃取诧寂风格元素,空间用了黑白灰三色混搭,墙地一体选用鹰牌2086现代砖—清水水泥,浅灰色瓷砖,不仅利于打理,也能较好地隐藏一些灰层和污渍。


厨房萃取现代设计风格元素,U型设计不仅考虑美观,也更注重实用功能,橱柜和吊柜的设计也十分人性化,充分考虑了储物和取物的便利性。同时,还巧妙地融入了各种现代科技,让烹饪变得更加轻松愉悦。

一个不被风格定义的家可奢华、可温馨、亦可惬意,本期业主跳脱固有风格,不被其束缚,打造出了属于自己的独一无二的家。
-END-